定义零件模型图纸视图
选择零件模型并放置初始图纸视图

在接下来的几步中,将选择 3D 零件模型,并使用图纸视图向导将初始图纸视图放置在图纸页上。
另外还将了解如何在图纸页上移动图纸视图。
启动定义零件模型图纸视图练习。
选择要放置在图纸页上的零件模型
-
选择主页选项卡→图纸视图组→视图向导命令
。 -
在选择模型对话框中,执行以下操作:
-
将查找范围位置设置为 QY CAD 2022 Training 文件夹。
注释:Training 文件夹的默认位置为 C:\Program Files\UDS\QY CAD 2022\Training。但是,系统管理员可能已选择了其他位置。
-
将文件类型选项设置为零件文档 (*.par)。
-
选择名为 Frame2.par 的文件。
-
单击打开。
系统显示视图向导命令条。
-
打开图纸视图创建向导

-
在视图向导命令条上,单击图纸视图向导选项
。 -
确保图纸视图向导上的零件视图选项与上图相符。
-
单击确定继续。
指定图纸视图布局
-
在视图向导命令条上,单击图纸视图布局
。使用图纸视图布局页面来指定主要图纸视图和其他图纸视图。主视图居中显示。
在此步骤中无需指定所有图纸视图。以后可以使用主页选项卡→图纸视图组上的命令添加它们。
-
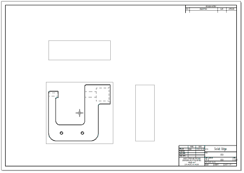
在图纸视图布局页面上,将主视图设置为前视图。
-
选择俯视图和右侧视图,如上图所示。
-
单击确定以关闭图纸视图向导。
-
请暂时先不要单击图纸页。

在图纸页上放置视图

-
观察视图向导命令条,该命令条在应用程序窗口顶部水平显示,或在边侧垂直显示,具体取决于您选择的用户界面主题。请注意,光标显示已在图形窗口中发生变化。
命令条包含用于控制图纸视图比例、视图显示属性和视图方向的选项。
-
在此向导中定义的图纸视图的幻影图像将附加到光标上,以便于将其定位到图纸页上。不要单击以放置视图。
-
在视图向导命令条中,将比例选项设置为 1:1。

-
将光标大致定位在如上所示的位置,然后单击以放置图纸视图。
观察图纸视图

图纸视图应按类似于图中的方式显示。
放置另一个图纸视图
-
选择主页选项卡→图纸视图组→主视图
。 -
将光标定位在下图中所示的图纸视图上,然后单击以选中它。

-
在选定视图周围移动光标,并注意将光标移到不同位置时发生的变化。 大小变化表示不同的视图方向。
-
定位光标,如下图所示,然后单击以放置正等测图纸视图。

使用主视图命令放置另一个图纸视图。可使用此命令从现有图纸视图折叠新图纸视图。
观察结果
![]()
观察新的正等测图纸视图。
此图纸视图可以使用图纸视图向导与其他视图一起放置。
重新定位图纸页上的图纸视图
-
按 Esc 键启动选择命令
。 -
将光标定位在正等测图纸视图上,如下图所示:

-
在视图高亮显示时,单击并拖动光标,以将图纸视图重新定位到图纸页的右上角,如下图所示。

通过将图纸视图拖至新位置调整其位置。
重新定位更多图纸视图
当移动正投影图纸视图(如俯视图、前视图或右视图)时,其他图纸视图也会移动以保持图纸视图适当对齐。还将显示图纸视图对齐线,以表示其所对齐的视图。
-
将光标分别定位在这三个正投影图纸视图上,然后将它们拖至新位置,以观察它们如何保持按正投影方式对齐。

移动正投影图纸视图时,可保持正投影对齐。如果图纸上放置了尺寸和注释,它们也会移动。
这样就很容易在图纸上调整视图位置。
主视图放置完成

现在,具体显示应与上图大致相符。
-
在快速访问工具条上,选择保存
。
将零件主视图放置到图纸页的步骤已经完成。
© 2021 UDS